Индивидуальное проектирование дома
всё до мелочей
От первого разговора до сдачи проекта мы позаботимся обо всём. Не нужно волноваться о деталях — вы просто рассказываете, какой дом хотите, а мы делаем всё остальное
Проектируем
идеальные дома
вы получите готовый
архитектурный раздел
Архитектурный раздел — это основа будущего проекта
Он показывает, как будет выглядеть дом, как распределятся помещения и какие материалы лучше подойдут. Благодаря этому разделу вы сразу понимаете, каким станет пространство и насколько оно удобно для жизни.
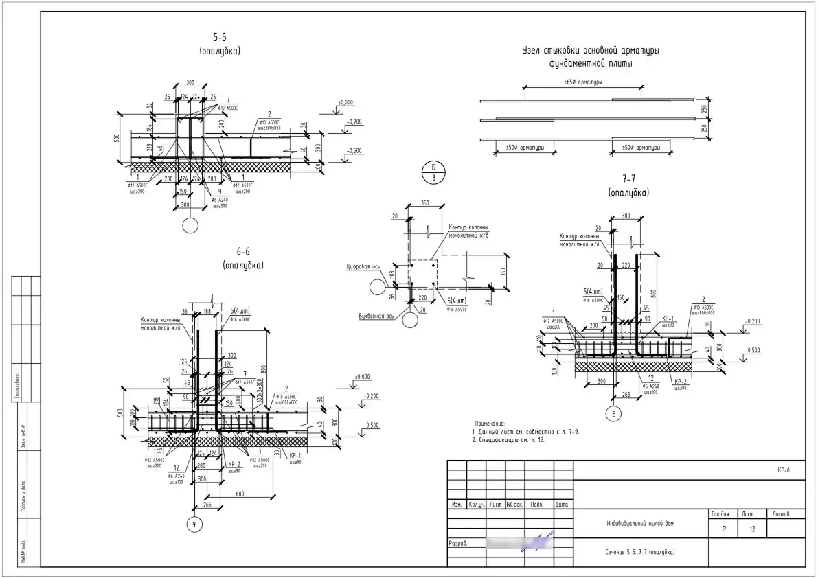
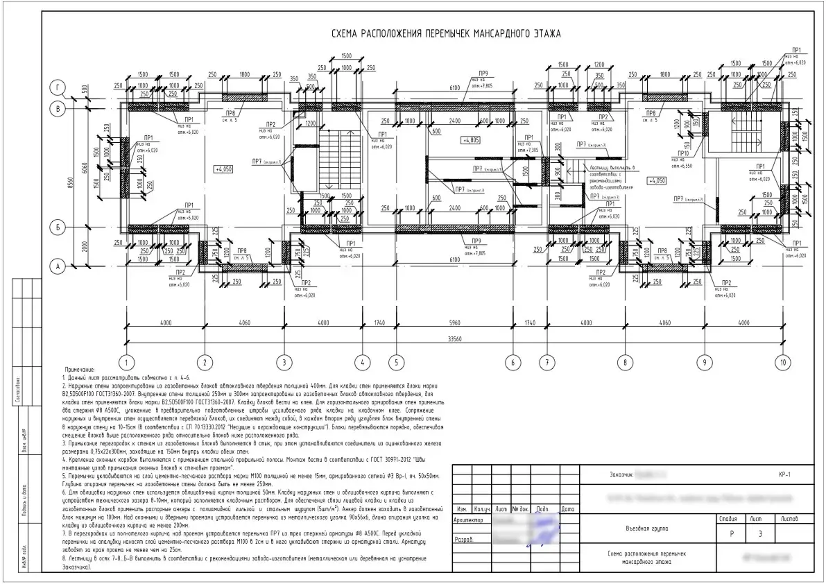
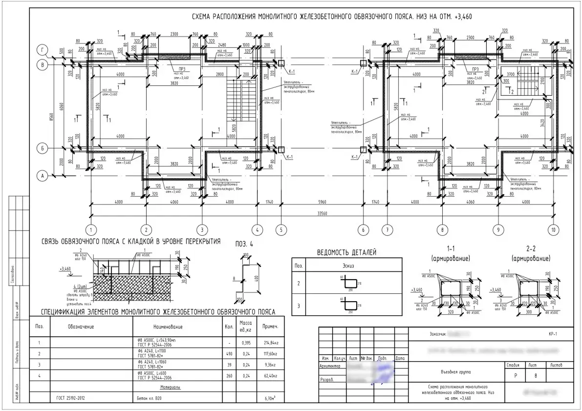
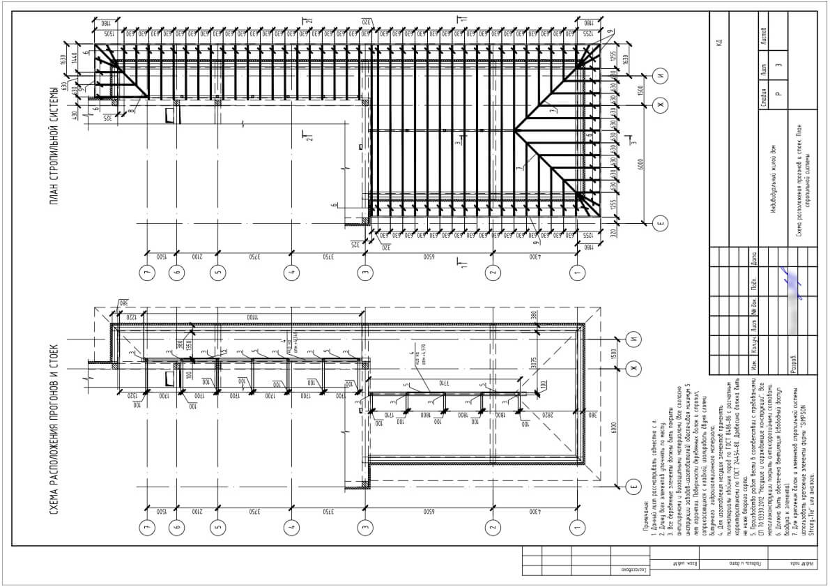
Конструктивный раздел сделает дом долговечным и безопасным
Конструктивный раздел — это подробное описание всех несущих и ограждающих элементов здания.
В нём собраны чертежи и спецификации стен, колонн, перекрытий, крыши и фундамента. Документация составляется с учётом строительных норм и правил, поэтому позволяет возвести дом, который будет прочным, долговечным и безопасным для проживания.
Главная задача этого раздела — зафиксировать каждую деталь конструкции: размеры, армирование, расположение соединений и узлов. Благодаря этому строители точно понимают, как выполнять работы, и избегают ошибок на площадке.
как проходит индивидуальное проектирование
почему с нами легко
и спокойно?















